

(2010) Hedaya Complex
client : Sunni Waqf Corporationtypology : Manama, Kingdom of Bahrain
services : Architecture
where : Manama, Kingdom of Bahrain
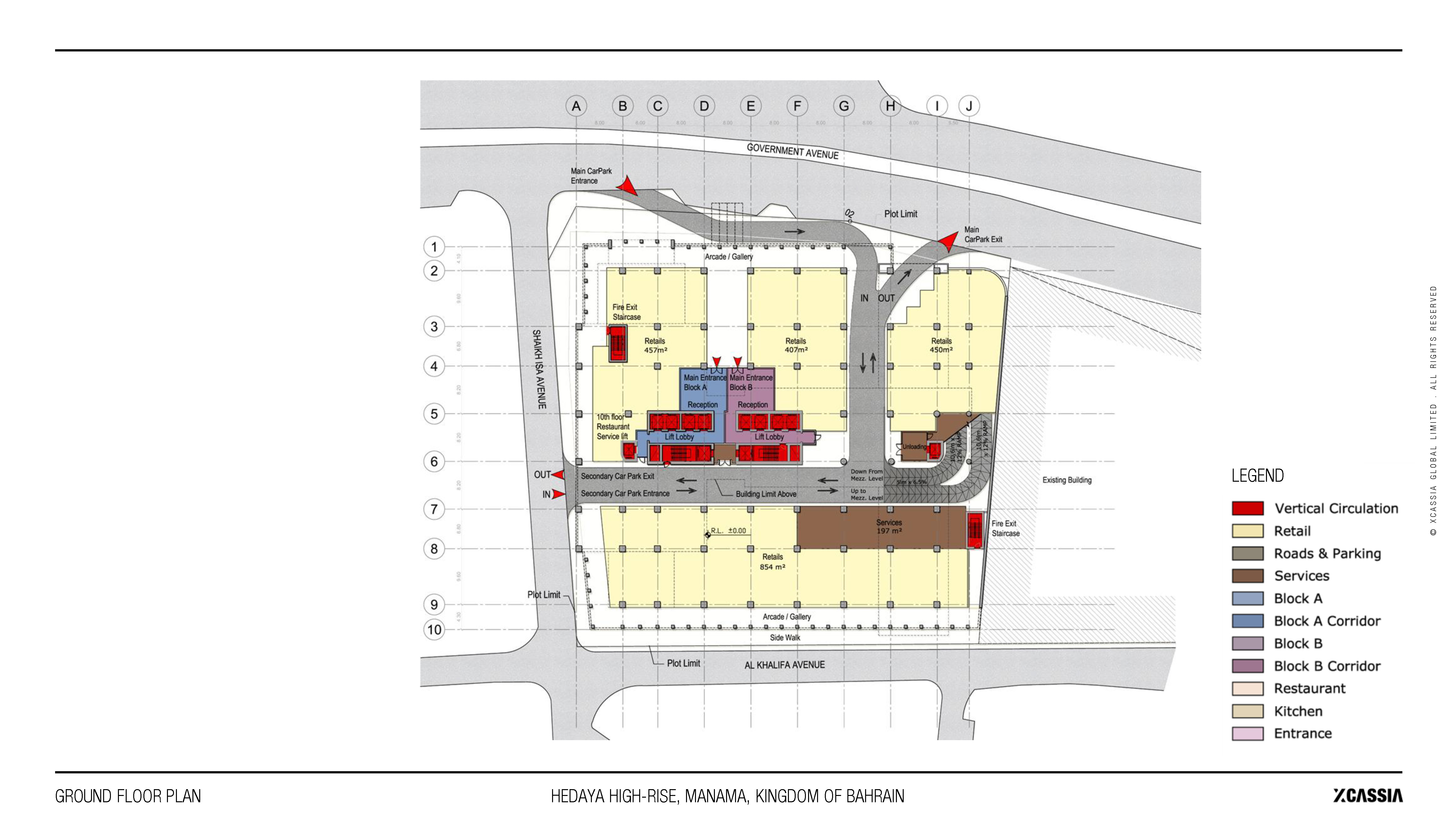
This high-rise residential tower, developed for Sunni Waqf Corporation, is envisioned as a dignified and enduring contribution to the urban fabric—combining elegance, efficiency, and purpose within a gross built-up area of approximately 43,000?m². Rising over 32 floors, the tower is supported by a multi-level podium and four basement levels for parking and services. The program includes high-spec residential units, retail at ground level, shared amenities, and a rooftop lounge offering panoramic views of the city.
The design reflects a restrained yet expressive architectural language. A series of vertical fins and recessed terraces animate the façade, providing shading, privacy, and depth. These elements reinforce the tower’s verticality while serving vital environmental functions. The tower’s massing is sculpted to maximize views and daylight, while remaining efficient and buildable within local structural standards. At street level, the podium engages the city through retail and community spaces, forming a strong urban edge that supports daily life and social interaction. The composition transitions from the textured, human-scaled base to a sleek vertical profile—creating a dialogue between context and aspiration.
Internally, the building’s layout is organized around a central core with multiple lift banks, enabling smooth vertical circulation and optimized floorplates. Apartments range from compact units for professionals to generous family configurations. Communal amenities are vertically distributed to encourage interaction and well-being, culminating in a rooftop gathering space.
Commissioned by Sunni Waqf Corporation, the project aligns with the institution’s mission to create long-term, socially beneficial assets. The design upholds values of stewardship and quality, balancing economic viability with architectural distinction. Material choices are durable yet refined, while MEP systems are integrated to ensure operational sustainability. This development is more than a residential tower—it is a contemporary expression of waqf values translated into a livable, contextually intelligent, and socially grounded piece of architecture. It demonstrates how vertical density, when thoughtfully composed, can serve both civic identity and future generations.
