

(2006-2020) The Galleries
client : Limitless L.L.Ctypology : Mixed-Use
services : Architecture
where : Dubai, United Arab Emirates
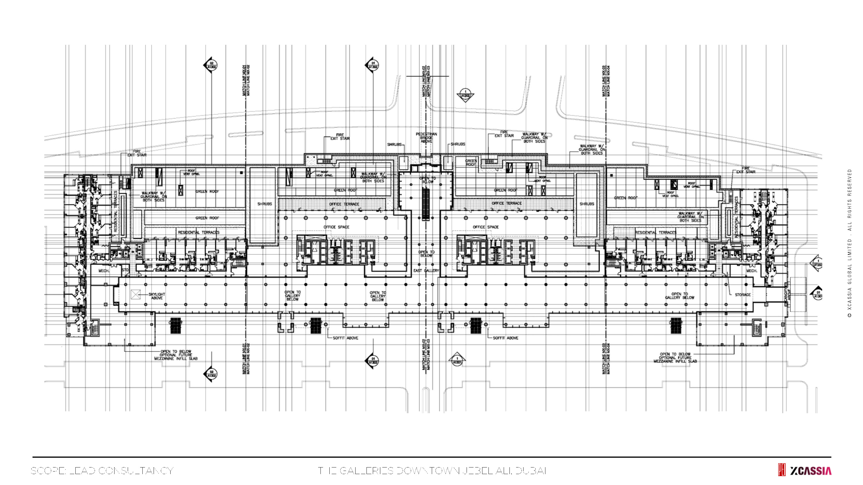
Pei Partnership Architects and xCassia completed designs and oversaw construction on a 225,000 sqm mixed-use commercial and residential project comprised of 2 residential blocks and 2 offices blocks located on four parcels within the Limitless master plan of Downtown Jebel Ali, Dubai. The Galleries at Downtown Jebel Ali is a flagship development of Limitless LLC, the international development arm of Dubai World. It introduces the first Class A corporate office space and full-amenity residential towers to the Jebel Ali Free Trade Zone, the Gulf region’s industrial and shipping center.
The proposed mixed-use project will be part of Zone 1, Block 2 of DJA and will include two twenty-eight story office buildings and two twenty-seven story apartment buildings. A parking garage to be located across the street to the east of the buildings and connected by an upper level pedestrian bridge will provide parking facilities for the project. The development includes more than 600 apartments in two towers totaling over 96,000 sqm, and Class A corporate office space in two towers totaling over 131,000 smq. Four other office towers and the Jebel Ali Free Trade Zone (JAFZA) headquarters face the same plaza and complete the development
