

Al Souaidi Residences
client : Mrs. Salama Al Souadibranding :
services : Architecture, Interior Design, Construction Oversight
typology : Residential
location : Abu Dhabi, UAE
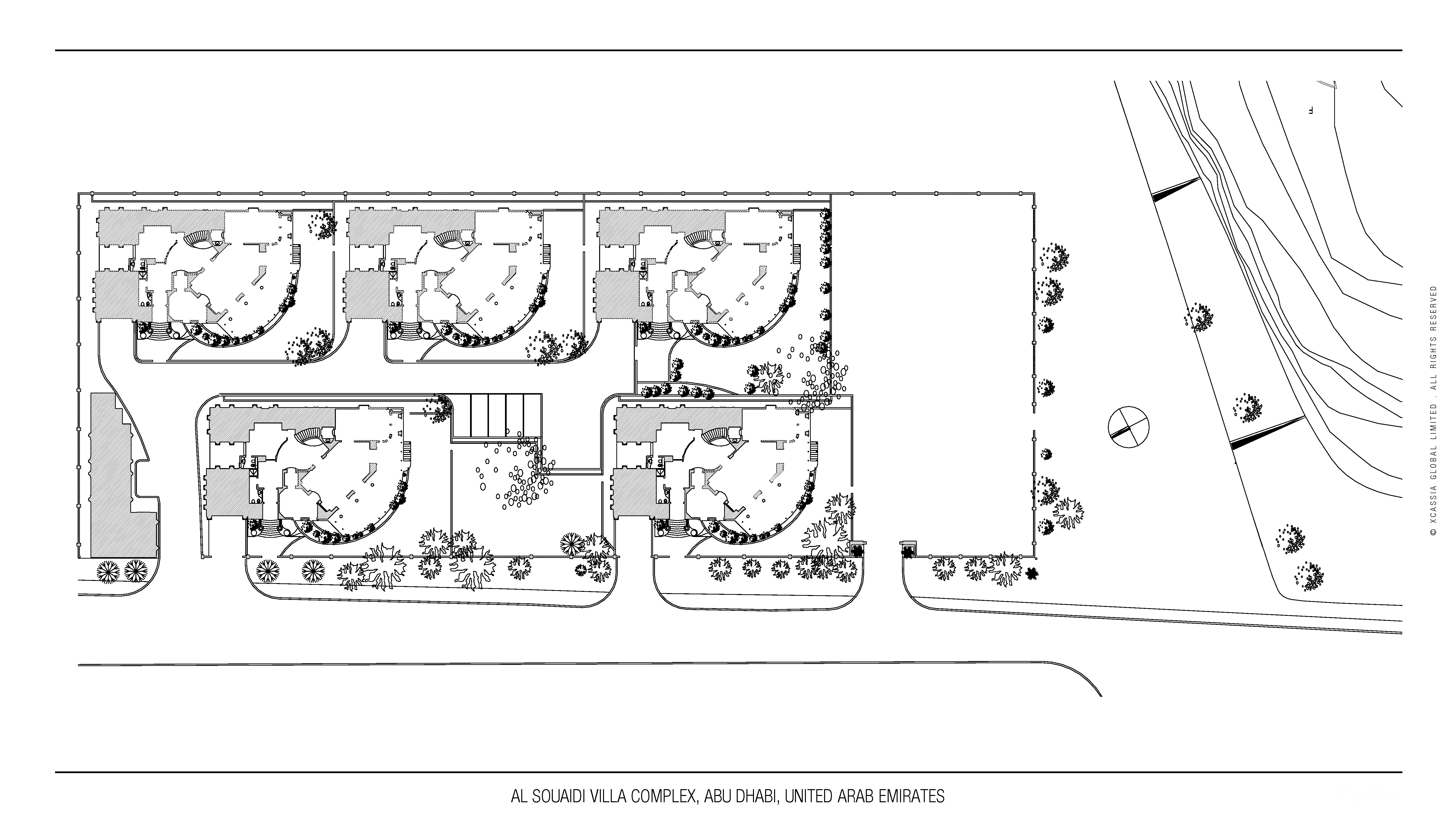
Located in the exclusive Al Bateen district of Abu Dhabi, the Al Souaidi Villa Complex is a gated coastal enclave comprising five generously scaled villas, each spanning approximately 650 square meters—totaling a built-up area of 3,250 square meters. The project delivers a private, secure, and highly livable environment, blending refined Mediterranean styling with unobstructed views over a tranquil lagoon.
Commissioned by a private client seeking architectural and interior design elegance grounded in an ecclectic contemporary context, the design responds with a carefully balanced language of soft stucco façades, terracotta roof tiles, and finely crafted ironwork. Each villa is independently articulated yet unified through a master plan that privileges orientation—ensuring every residence enjoys clear sightlines toward the sea and optimal privacy from neighboring volumes.
The site strategy accommodates a future phase for the client’s private residence, reserving a prime parcel within the compound for its eventual integration. Generous rooftop terraces, shaded loggias, staff quarters, and tiered landscaping reinforce the residential quality of the complex while anchoring it within a richly planted and breezy coastal setting.
This project reflects a timeless interpretation of Mediterranean architecture adapted for the Gulf—understated, enduring, and thoughtfully proportioned.
- Domino
- Cocoons Wellness Estate
- Benabola Resort Apartments
- Alpha 545
- Cube Tower
- Shangri-La Hotel
- Benabola Hotel Resort
- Wyndham Grand Hotel United Tower
- Sarah Gray Residences
- MUGLER Residences
- DJAAYZ HOTEL & ELECTRODOM
- Business Bay Hotel
- Shams Tower
- Mixed-use Hospitality & Electrodom
- The Beacon
- Al Souaidi Residences
- SAIFI 308
- The Boardwalk
- Jaww Resort Masterplan
- Hotel Felicien
- The Landmark
- Branded Condos
- Hilton Towers
- The Wedding Pavilion
- Linley Canal Villas
- Al Wadi Gate
- 205-215 Lexington
- The Colonnades
- Burj Khalifa Residences
- The Galleries Downtown
- Ha Long Bay Domino
- The Highline
- Branded Residence
- Saadiyat Beach Club
- Bosque Park #1 Mall
- Delmon Headquarters
- Millennium Plaza Downtown Hotel
- Private Residence
- Citystars Kettameyah
- InterContinental Heliopolis
- Citystars Heliopolis
- Sheikha Fatima Palace
- Sheikh Hamdan Palace
- The Galleries Plaza
- Zayed Sports City Cooling Plant
- Silver Tower
- Ahlam Tower
- Holiday Inn Heliopolis
- Four Seasons Kazakhstan
- New Souk District Cooling
- Sofitel Hotel
- Back to Design
