

(2019-2023) MUGLER Residences
client : TBCtypology : Residential
services : Architecture, Interior Design, Branding & Marketing
where : Global
Project Description: MUGLER Residence by xCassia
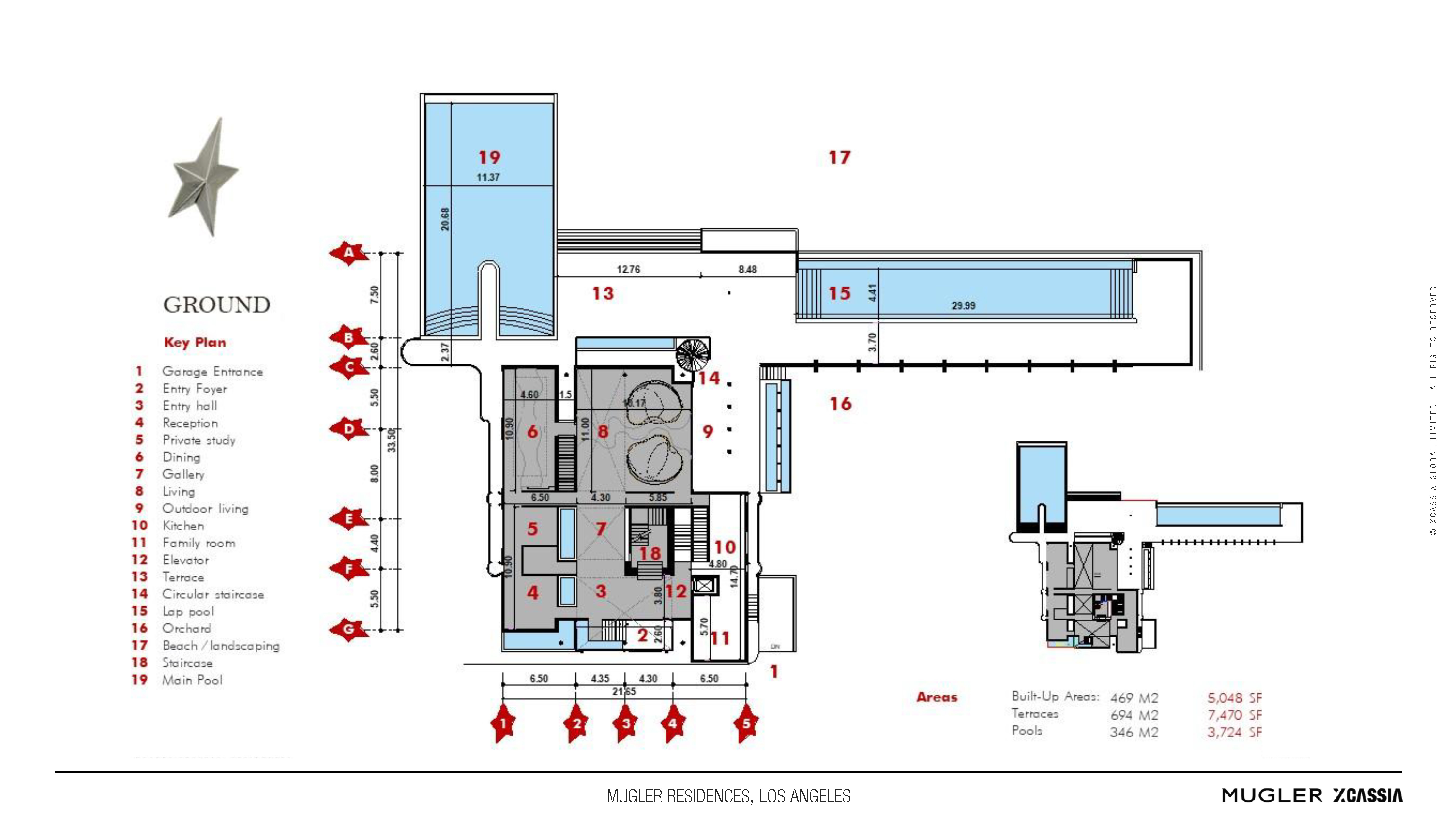
The MUGLER Residence is the architectural embodiment of a life lived boldly—where fashion, fantasy, and futurism converge in a singular expression of timeless elegance. Conceived through an intimate collaboration between the late Manfred Thierry Mugler and architect Jean-Paul Cassia, this 17,190 SF signature mansion represents the first foray of the Mugler brand into the realm of real estate—delivering an extraordinary home shaped by the values of haute couture and high concept.
A French director, fashion designer, photographer, perfumer, and creative force, Manfred Thierry Mugler brought a multi-dimensional lens to the project, infusing it with a “muglerized” vision of spatial drama, rigorous proportion, and immersive sensuality. Like his iconic designs, the residence is defined by five thematic pillars: proportion, flow, lightness, glamour, and sustainability—each meticulously articulated through material, movement, and atmosphere.
The result is an avant-garde statement of branded living: six en-suite bedrooms, triple-height reception spaces, a sculptural dining hall, and private office merge with terraces, external pools, a screening room, and expansive gardens spanning over 10,850 SF. Every detail—down to the lighting, textures, and artwork—has been curated to engage the senses, echoing Mugler’s belief that a space should not only be seen, but felt, heard, and remembered.
Internally, the residence draws from Mugler’s couture playbook: sweeping curves, high contrasts, and seductive materiality define a world where the domestic becomes theatrical. From the dramatic living space—bathed in sea light through glass façades—to the ethereal bedroom suite framed by a floating canopy and celestial ceiling cloud, the home is a living performance, choreographed to inspire.
Adaptable to beachfront or natural settings, each MUGLER Residence may stand alone as a one-off architectural icon or form part of a curated, gated collection of luxury estates, each supported by a comprehensive lifestyle and amenities program designed for discerning connoisseurs.
As showcased in the landmark 2019 "THIERRY MUGLER COUTURISSIME" exhibition at the Montreal Museum of Fine Arts, Mugler's enduring legacy is one of intemporal vision. This residence carries that legacy forward—a physical, inhabitable couture piece that transcends trends and defies time.
“My creative visions have no limits... and my only dream is to enchant the human spirit through every artistic vehicle life offers.” - Manfred Thierry Mugler
The MUGLER Residence is not merely architecture—it is a total work of art, a tribute to the sublime, and a celebration of the most beautiful creature on Earth: the human being.
