

SAIFI 308
client : Home Holding s.a.lbranding : SAIFI 308
services : Develpment, Construction Management, Architecture, Construction Supervision
typology : Luxury Residential
location : Beirut, Lebanon
SAIFI 308: A Legacy of Precision and Place in Beirut’s Cultural Quarter
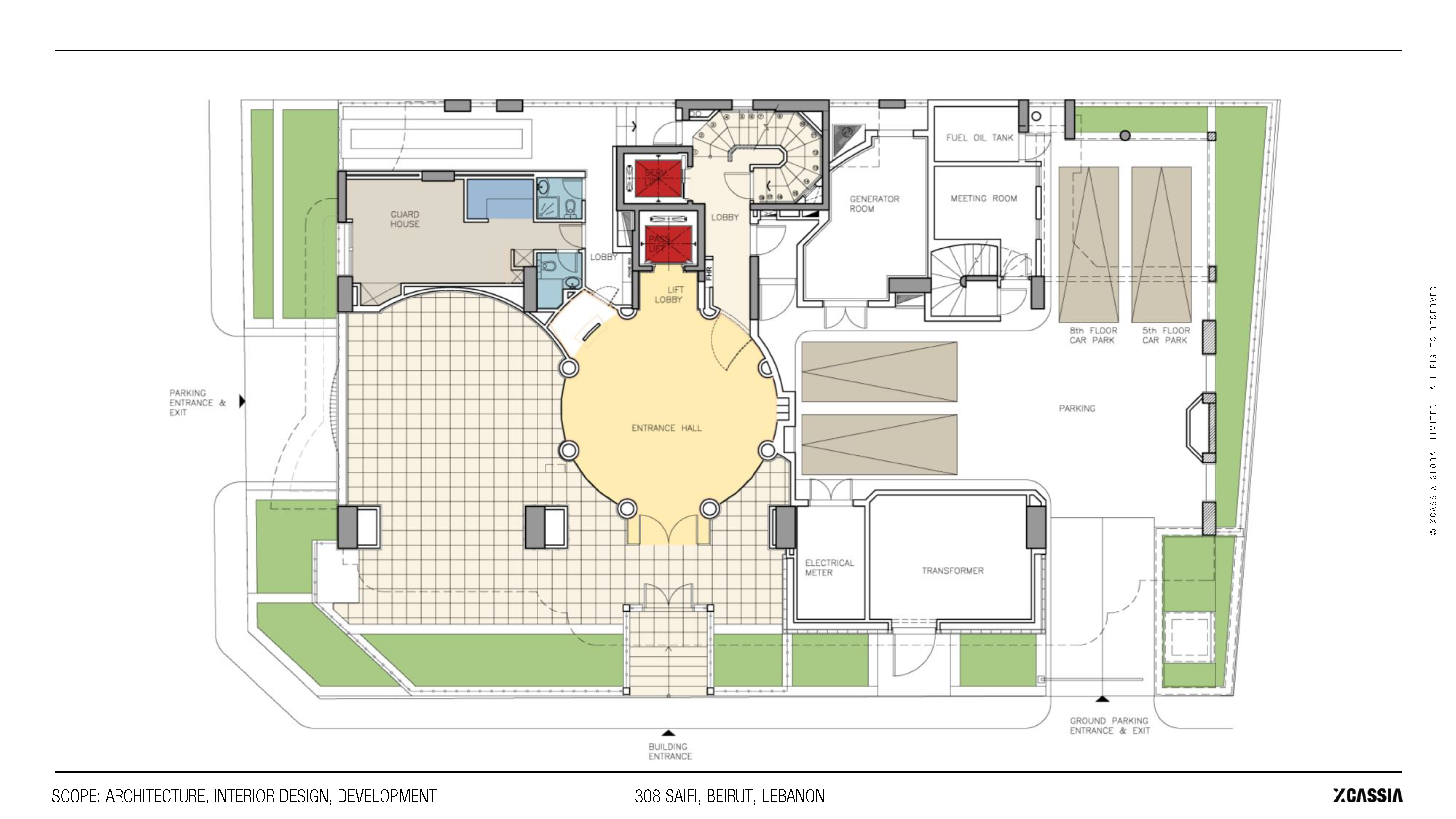
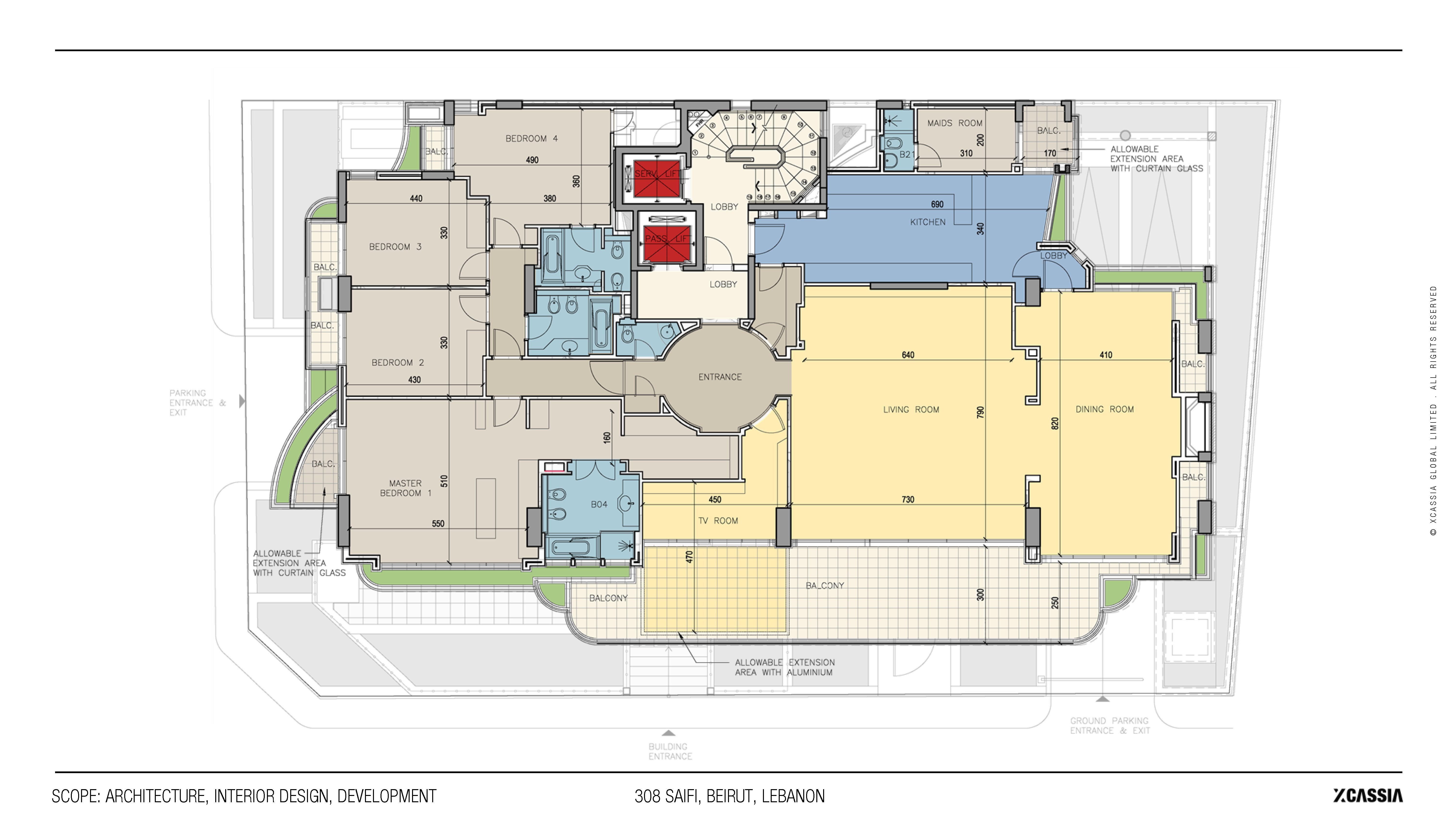
In the heart of Beirut’s storied Ashrafieh district, SAIFI 308 rises as a singular architectural expression—crafted, co-developed, and delivered by XCASSIA. This 13-story, single-unit-per-floor residential landmark merges refined contemporary living with deep contextual sensitivity, set directly across from the iconic 19th-century Villa Tabet and mere steps from the capital’s Downtown Business District.
Occupying a rare 800m² site fronting two quiet streets in the prestigious Tabaris enclave, the project encompasses eight levels of typical luxury apartments, two levels of non-typical deluxe residences, and two crowning floors hosting a triplex and penthouse, all atop four subterranean levels of private parking, storage, and technical facilities.
Each residence is designed for spacious, gracious living: two en-suite master bedrooms with walk-in closets, two additional bedrooms, a TV lounge, and a sweeping reception area adjoining a formal dining space. A well-appointed kitchen—with breakfast area, separate service entrance, and a maid’s quarter—rounds out the domestic program. All units enjoy rare, uninterrupted vistas over Villa Tabet’s lush private gardens—an enduring visual privilege.
The penthouse duplex, spanning the 12th and 13th floors, offers panoramic views of Downtown Beirut and the Mediterranean. It features four en-suite master bedrooms, multiple reception zones, and a circular skylight atop the internal stair, leading to a rooftop sanctuary pre-equipped for a private pool, elevated wooden deck, and outdoor kitchenette with guest facilities.
Designed with technical precision, SAIFI 308 integrates concealed AC systems, radiator-based central heating, Grohe sanitary fixtures, double-glazed aluminum windows, and marble finishes. Provisions for solar water heating reflect a forward-thinking, sustainable ethos.
With its sculpted presence, legacy-facing outlook, and rarefied address, SAIFI 308 stands as a refined statement of architectural and cultural continuity—rooted in history, yet resolutely modern in execution.
- Domino
- Cocoons Wellness Estate
- Benabola Resort Apartments
- Alpha 545
- Cube Tower
- Shangri-La Hotel
- Benabola Hotel Resort
- Wyndham Grand Hotel United Tower
- Sarah Gray Residences
- MUGLER Residences
- DJAAYZ HOTEL & ELECTRODOM
- Business Bay Hotel
- Shams Tower
- Mixed-use Hospitality & Electrodom
- The Beacon
- Al Souaidi Residences
- SAIFI 308
- The Boardwalk
- Jaww Resort Masterplan
- Hotel Felicien
- The Landmark
- Branded Condos
- Hilton Towers
- The Wedding Pavilion
- Linley Canal Villas
- Al Wadi Gate
- 205-215 Lexington
- The Colonnades
- Burj Khalifa Residences
- The Galleries Downtown
- Ha Long Bay Domino
- The Highline
- Branded Residence
- Saadiyat Beach Club
- Bosque Park #1 Mall
- Delmon Headquarters
- Millennium Plaza Downtown Hotel
- Private Residence
- Citystars Kettameyah
- InterContinental Heliopolis
- Citystars Heliopolis
- Sheikha Fatima Palace
- Sheikh Hamdan Palace
- The Galleries Plaza
- Zayed Sports City Cooling Plant
- Silver Tower
- Ahlam Tower
- Holiday Inn Heliopolis
- Four Seasons Kazakhstan
- New Souk District Cooling
- Sofitel Hotel
- Back to Design
